The Concept Phase began with the building committee searching for an architect to be the designer of the project. Context Architecture was selected for the project who used the HKT feasibility study as the starting point of the concept design of the project.
During the Concept phase Context Architecture worked on developing a detailed program for the uses which was complied into a Space Needs Studies for each building, click the image to the right to view the final space needs studies for both the Public Safety Building and for the combined Town Hall / Community Center Building.

During the concept phase many different site plan layouts were studied and presented to the committee. The selected Master Plan for the site layout is seen in the image to the right. The committee desired to maintain the view shed through the site to preserve the bucolic aspects of the site. The Town green at the front and site beyond are to be connected.

The Design Team conducted extensive Programmatic Studies with every Town Department moving into the new facilities. This included current and projected staff needs as well as adjacency needs to other town departments.

This programming continued for many 'rounds' of interviews.

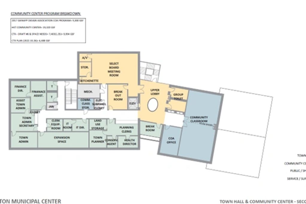
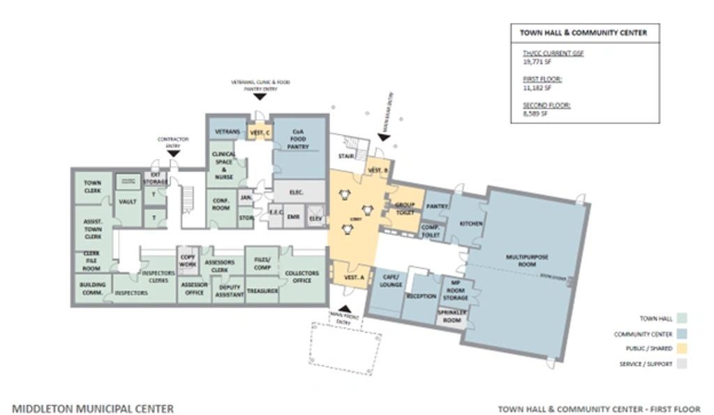
Using the information gathered from programming, the team was able to design conceptual floor plans/Adjacency Diagrams.

Here is an early floor plan of the first floor in the Town Hall/Community Center Building.

And the second floor:
We use cookies to analyze website traffic and optimize your website experience. By accepting our use of cookies, your data will be aggregated with all other user data.